- TOP
- 不動産投資・事業用をエリアから探す
- 目黒区
- 八雲
- 目黒区八雲1丁目の不動産投資・事業用
一棟売アパート
目黒区八雲1丁目の不動産投資・事業用
情報更新日:2026/05/25 次回更新予定日:2026/06/08
所在地東京都目黒区八雲1丁目[周辺地図]
交 通東急東横線「都立大学」駅徒歩4分






満室想定年間賃料 16,833,600円 現況利回り 約3.7%
物件詳細情報
物件No.50000007485
| 所在地 | 東京都目黒区八雲1丁目 | ||
|---|---|---|---|
| 交通 | 東急東横線「都立大学」駅徒歩4分 東急大井町線「自由が丘」駅徒歩20分 東急大井町線「緑が丘」駅徒歩21分 |
||
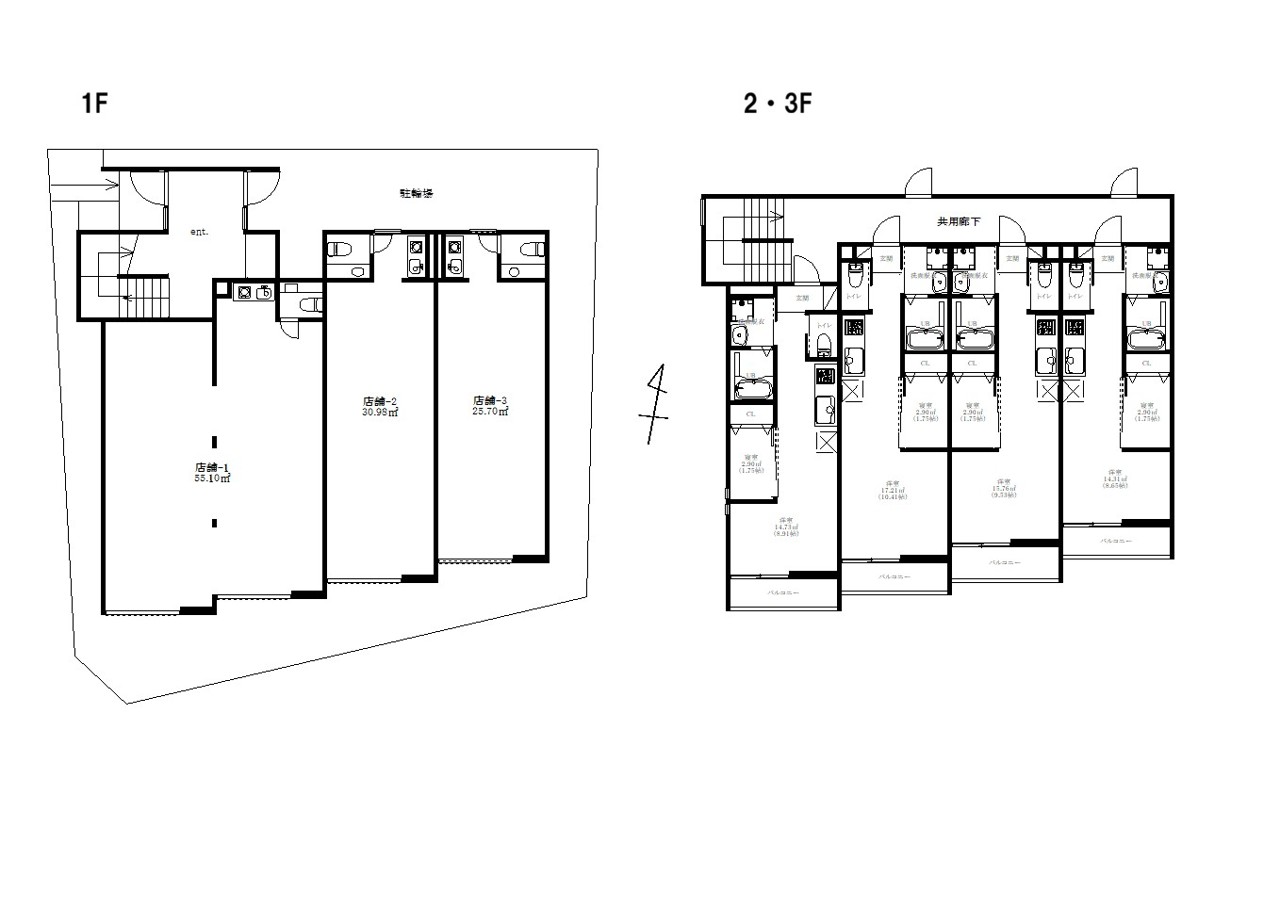
| 土地面積 | 220.66m² 公簿 | ||
| 建物面積 | 393.21m² 公簿 | ||
| 総戸数 | 全10戸 | 建ぺい率 | 60% |
| 容積率 | 160% | 権利種類 | 所有権 |
| 接道 | 南側3.9M道路に15.2M接道 西側4M道路に15.9M接道 |
構造・規模 | 木造 3階建て |
| 築年・入居 | 2021年10月 | 地目 | 宅地 |
| 用途地域 | 第一種住居地域 | 地勢 | 平坦 |
| 現況 | 満室 | 駐車スペース | なし |
| 引渡時期 | 相談 | 取引態様 | 媒介 |
- 想定利回り:満室時表面利回り(年)=賃料×12ヶ月/購入価格※賃料は満室時を想定し、算出しております。
- 利回りとは、当該不動産の1年間の予定賃料収入の不動産取得対価に対する割合であり、公租公課その他当該物件を維持するために必要な費用の控除前のものです。また、予定賃料収入が確実に得られる事を保証するものではありません。
- ※価格は物件の代金総額を表示しており、消費税が課税される場合は税込み価格です。(1,000円未満は切り上げ。)
税率は引き渡し時期により異なりますので、各物件の詳細につきましてはお問い合わせください。 - ※敷地権利が借地権のものは価格に権利金を含みます。
- ※制作中に内容が変更される場合もありますので、あらかじめご了承ください。
- ※購入の前には物件内容や契約条件についてご自身で十分な確認をしていただくようにお願いいたします。
- ※完成予想図はいずれも外構、植栽、外観等実際のものとは多少異なることがあります。
- ※CG合成の画像の場合、実際とは多少異なる場合があります。
周辺地図
周辺施設一覧
- ショッピングセンター
- スーパー
- コンビニ
- ドラッグストア
- ホームセンター
- 飲食店
- その他店舗
- 商店街
- 大学
- 専門学校
- 高校・高専
- 中学校
- 小学校
- 保育園
- 幼稚園
- 公民館・児童館
- 病院
- 郵便局
- 役所
- 図書館
- 金融機関
- 警察・消防
- 趣味・娯楽施設
- 公園・運動施設
- 周辺の街並み
- 駅
- その他
お問い合せ先
- 株式会社アイリス
- お電話でのお問い合わせは
03-5731-8622「ホームページを見た」とお問い合わせください - 東京都目黒区緑が丘2-24-17 小松ビル2F
- 営業時間:9:30~19:00
- 定休日:水曜、第1・3火曜 /年末年始・夏季休暇
- 免許番号:東京都知事免許(8)第60678号
- TOP
- 不動産投資・事業用をエリアから探す
- 目黒区
- 八雲
- 目黒区八雲1丁目の不動産投資・事業用






















